Nutzung: Wohnen
Haus: Reihenhaus, Baujahr ca. 1960
Geschosse: 2 + Keller
Wohnfläche: ca. 140 m² + 70m² Keller
Bewohnende: 7
Wohnform: Funktionale Wohngemeinschaft
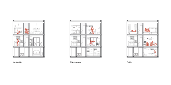
Zimmer: Küche, Bad (2), Wohnzimmer mit Esszimmer, Arbeitszimmer, Schlafzimmer, 1 privates Schlafzimmer, Ankleideraum, Ruheraum, Werkraum, Wäscheraum, Fahrradgarage/Lager
Die „Funktionale Wohngemeinschaft“ (FuWo) bezieht ein Reihenhaus, welches in den 1960ern für die klassische Kernfamilie gebaut wurde. In einer FuWo teilen sich die sieben Bewohnenden fast alles; von Räumlichkeiten, über Kleidung, Lebensmittel bis zu den Emotionen. In einer „Ego-Box“ können sie dennoch persönliche Gegenstände bewahren. Das Wohnen wird aktiv und gemeinschaftlich gestaltet. In ihren Bauwochenenden passen sie das Haus an ihre Bedürfnisse an und im regelmäßigen Plenum gestalten sie ihr Zusammenleben. Dabei kann es um Ideen, Bedürfnisse oder Vereinbarungen gehen.
Das Reihenhaus entspricht dem klassischen Einfamilienhaus in der Zimmeraufteilung und der -struktur. Zwischendurch wurde es zur Vermietung in zwei Wohnungen geteilt, eine zusätzliche Küche im OG eingebaut. Die FuWo hat in Absprache mit der Vermietung diese Maßnahmen wieder zurückgebaut. Im Keller befinden sich Werk- und Wäscheraum sowie die Fahrradgarage, im Erdgeschoss die Küche, Ess- und Wohnzimmer, Arbeitszimmer und ein kleines Bad. Im Obergeschoss ist das Schlafzimmer, der Ankleideraum, über welchen der Ruheraum zugänglich ist, ein weiteres Bad und ein Privatzimmer. Außerdem gibt es einen Garten. Im gesamten Haushalt finden sich die Ergebnisse gemeinsamer Projekte – ob die Sauna im Garten, verschiedene Bepflanzungen, Dekorationen vergangener Events oder ein selbst gebauter Kleiderschrank.
Während der Auseinandersetzung mit der FuWo sind uns zwei Themen besonders aufgefallen: Erstens interessierte uns die Aneignung der vorgefundenen Räume und die Intentionen zu deren Umnutzung. Zweitens zeigt sich in der Veränderung der räumlichen Form zugleich eine in der Bedeutung von Privatsphäre. Die Fallstudie verfolgt diese Themen als Referenz für das Umdenken eines Wohnverständnisses im größeren Kontext, wie es darin auch ein Modellprojekt für zukünftige alternative Wohnprojekte erkennt.

Während des Feudalismus fanden Wohnen und Arbeiten am selben Ort statt. Es war eine Arbeits- und Wohngemeinschaft (Häußermann und Siebel 1996). Gegen Abgaben haben Bauernfamilien im Ganzen Haus gelebt, wo sie das Stück Land, das sie von den Feudalherren liehen, bewirtschafteten. Dieses Verhältnis des Leihens wurde nach der Zeit des Feudalismus durch Privatbesitz ersetzt. Land u…
Mehr lesen...


"Privater Raum als Raum der Entfaltung von Intimität und Individualität wie als vor fremden Blicken geschützter Raum verlangt eine Binnendifferenzierung der Wohnräume" - Hartmut Häußermann 2000
Eine Frage, die die Funktionale Wohngemeinschaft (FuWo) an potenzielle neue Mitbewohner*innen stellt ist: „Was bedeutet für dich Privatsphäre?“ In der FuWo ist das Bewusstsein für…
Mehr lesen...

"Die materiellen und symbolischen Arrangements des modernen Wohnens separieren dagegen Funktionen und Personen in spezialisierten Räumen für Essenszubereitung, Essen, Sich-Lieben, Schlafen, Sich-Waschen, Sich-Entleeren, miteinander Sprechen; Eltern und Kinder, Sohn und Tochter, Mann und Frau." - Häußermann und Siebel 1996
Das Haus der Funktionalen Wohngemeinschaft (FuWo) wur…
Mehr lesen...